Since opening our doors in 1867, we have been a place where children discover confidence, families find support, and individuals of all ages come to belong, grow, and thrive.
But our impact, and our community, has outgrown our 70-year-old facility. It was built for a different time, and the challenges facing people today demand more space, access, and opportunity. Growing waitlists, limited space, and aging infrastructure prevent us from serving everyone who needs us.
The need is clear, and the opportunity is now!
The need is clear, and the opportunity is now!
Over 159 Years of Community Impact

1858
The Haverhill YMCA first opened its doors in a building behind the old City Hall. In our early years, we were a safe space for young men, offering programming to meet their needs. In addition to spiritual aims, our Y often hosted classes and social events focused on self-improvement and healthy living.
Our Y moved to its current location, 81 Winter Street after construction. Nationally throughout the 70s and 80s the YMCA eliminated gender barriers. Opening up the YMCA to women and children further expanded programming and services to include fitness and family programs.

1955

2006
We merged with the YMCA of the North Shore and ran a $1.1 million capital campaign to make updates to the facility, including expanding affordable housing.
We launched our school age programs, and in 2011, opened our Children’s Learning Center. Expanding our childcare programs to fit the needs of the community enabled us to renovate Wadleigh House and expand our affordable housing to house 74 individuals in 2013.

2007

2007
The Haverhill YMCA serves over 6,000 children, families, and individuals annually. We have continued to expand our programs to best meet Greater Haverhill’s needs, which include 2,000 children in our school age, camp, and teen programs, teaching lifesaving swim skills, and giving away $850,000 in financial assistance.
Our Bold Vision
Spirit, Mind, and Body Wellness
Ensure accessible and convenient opportunities for physical and mental wellness for all.
Expanded Education
Eliminate waitlists and ensure every child has access to early learning, before/after school care, and enrichment programs that prepare them for lifelong success.
Recreation
Create safe, engaging spaces where youth and teens can build confidence, leadership skills, and positive pathways for the future.
Building the Center of the Community

potential exterior

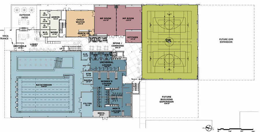
Potential first floor

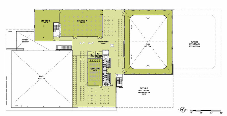
Potential second floo

Potential early learning center

CURRENT SPACE

Limited space today. A purpose-built rooftop playspace tomorrow.
ROOFTOP RENDERING

Designed to expand safe outdoor play for Salem’s preschool and school-age children.


“Cedar’s was built on the idea of bringing people together around nourishment, not just through food, but through community. In Haverhill, we’ve grown alongside the families who have supported us from the very beginning, and giving back to this community has always been part of our responsibility as a local company. The YMCA has long been a cornerstone of health, connection, and opportunity in Haverhill, and we’re so excited to be supporting its future as it will positively impact generations to come and help transform our community.”
“This gift represents more than financial support, it’s an investment in the heart of the community that has shaped us for decades. Haverhill is home, and the people here are family. Supporting the construction of a new YMCA is our way of helping to create opportunities for healthy living, learning and connection for generations to come. We are proud to contribute to a space that will foster growth, wellness and belonging for children, families, and seniors alike, and we hope this gift inspires others to join in building a stronger, healthier Haverhill”

